ВЫБРАТЬ КВАРТИРУ

Однокомнатные квартиры:

1 комнатная 31,48 м2

компактная однокомнатная квартира

Квартира площадью 31,48

1 комнатная 31,48 м2

компактная однокомнатная квартира

Lights

1 комнатная 42,73 м2

1 комнатная квартира с кухней-столовой

Nature

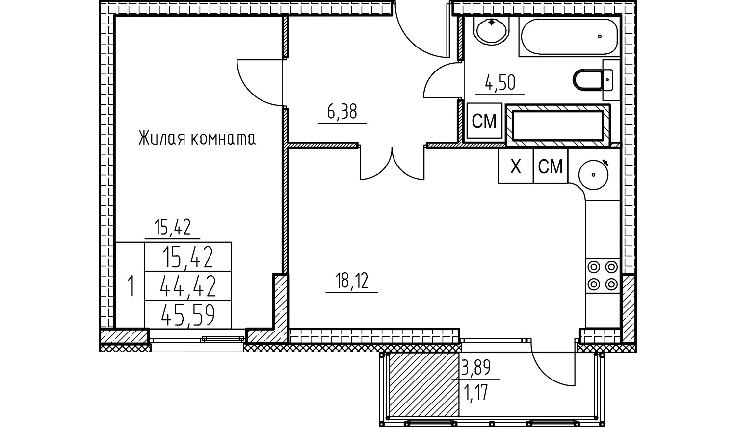
1 комнатная 45,59 м2

однокомнатная квартира с кухней-столовой

Car

1 комнатная 45,59 м2

однокомнатная квартира с кухней-столовой

Car

Двухкомнатные квартиры:

2 комнатная 42,49 м2

компактная двухкомнатная квартира

Car

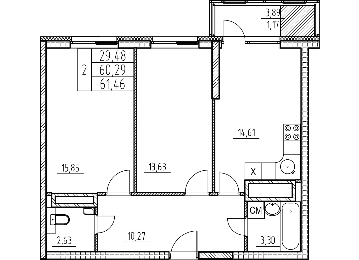
2 комнатная 61,46 м2

двухкомнатная квартира с большой кухней и двумя санузлами

Car

2 комнатная 67,11 м2

двухкомнатная квартира с большой кухней, гардеробной и двумя санузлами

Car

Трехкомнатные квартиры:

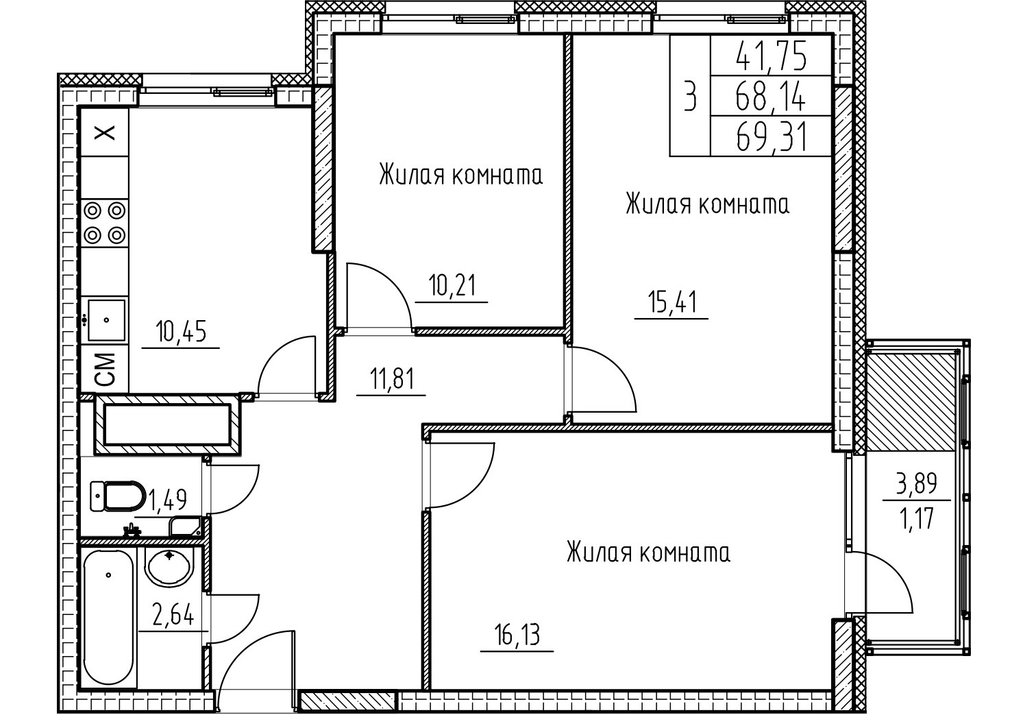
3 комнатная 69,31 м2

трехкомнатная квартира

Car

3 комнатная 69,31 м2

трехкомнатная квартира

Car